(Προς Πώληση) Κατοικία Μονοκατοικία || Ανατολική Αττική/Βάρη-Βάρκιζα - 450 τ.μ, 4 Υ/Δ, 2.500.000€

Χαρακτηριστικά

  •  Υ/Δ: 4
  •  Μπάνια: 4
  •   Όροφος: Ισόγειο
  •   WC: 2
  •   Έτος Κατασκευής: 2025
  •   Parkings: 2

Περιοχή: Βάρη-Βάρκιζα (Δ. Βάρης-Βούλας-Βουλιαγμένης)
Υποπεριοχή: Βάρκιζα
Τιμή: 2.500.000€
Εμβαδόν: 450
Κατηγορία: Κατοικίες
Τύπος: Μονοκατοικία
Κατάσταση: υπό κατασκευή
Τιμή/τ.μ.: 5.556€
Τ.μ. Οικοπέδου:
Θέα: Καλή
Θέρμανση: Αυτόνομη
Επίπεδα: 3
ΠΕΑ: A+
Κωδικός: 1863406
Κωδικός: 15078
 

Επιπλέον Χαρακτηριστικά

Ασανσέρ Πόρτα Ασφαλείας Συναγερμός Θυροτηλεόραση Αποθήκη Τζάκι Νυχτερινό ρεύμα Δορυφορική Καλωδιακή Τηλεόραση Internet Εσωτερική Σκάλα Διπλά Τζάμια Σίτες Βεράντες Πολυτελές Διαμπερές Προσόψεως Φωτεινό Γωνιακό Ενδοδαπέδια Κλιματισμός Ηλιακός Πισίνα Κήπος Νεόδμητο
 

Περιγραφή

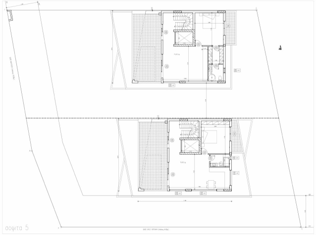
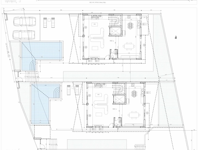
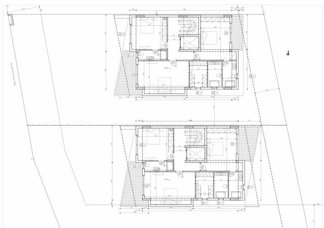
Μονοκατοικία, 450 τ.μ., Προς Πώληση , Βάρη-Βάρκιζα, Βάρκιζα, 3 Επίπεδο/α, Ισόγειο Όροφος, 4 Υ/Δ (4 Master), 4 Μπάνιο/α, 2 WC, 1 Τζάκι/α, Δάπεδα: Δρύινα, Kουφώματα: Αλουμινίου, 2 parking, Έτος κατασκευής: 2025, Κατάσταση: υπό κατασκευή, Ενεργειακό Πιστοποιητικό: Α+, Χαρακτηριστικά: Ασανσέρ, Πόρτα Ασφαλείας, Συναγερμός, Θυροτηλεόραση, Αποθήκη, Τζάκι, Νυχτερινό ρεύμα, Δορυφορική Κεραία, Καλωδιακή Τηλεόραση, Internet, Φωτοβολταϊκά Πάνελ, Εσωτερική Σκάλα, Διπλά Τζάμια, Σίτες, Βεράντες, Πολυτελές, Διαμπερές, Προσόψεως, Φωτεινό, Γωνιακό, Ενδοδαπέδια, Κλιματισμός, Ηλιακός, Πισίνα, Κήπος, Νεόδμητο, Εξαιρετικής Αρχιτεκτονικής Και minimal Aισθητικής Μονοκατοικία στην Βάρκιζα σε Γωνιακό Οικόπεδο., Πολυτελές Ακίνητο , Ευάερο και Ευήλιο. Μεγάλο Σαλόνι .Ανετοι Χώροι, Μεγάλα Μπαλκόνια., Αυτόνομη - Αντλία Θερμότητας Θέρμανση, Θέα: Καλή, Τιμή: 2.500.000€ Asty Realty, Τηλέφωνο Επικοινωνίας: 2103008807, www.asty-realty.gr, info@asty-realty.gr
 

Αναλυτική Περιγραφή

Πολυτελής Μονοκατοικία, Σε Γωνιακό Οικόπεδο. Μεγάλη Πισίνα. Ήσυχη και Ωραία Γειτονιά. Μinimal Σχεδιασμός, Προσοχή Στην Λεπτομέρεια. Smart Home.
Πλησίον Αγοράς Σχολείων Και Συγκοινωνιών. Οχι Μακρυά Απο την Παραλία. Ιδανικό Για Κατοικία Και για Επένδυση.
 

Στατιστικά Ακινήτου

Δημοσίευση Ακινήτου: 29 Νοε, 2025
Τελευταία ενημέρωση: 29 Νοε, 2025
 

Με Ενδιαφέρει το ακίνητο

*
*
Τα πεδία με * είναι υποχρεωτικά
Εισάγετε τον κωδικό

Ενεργειακό Πιστοποιητικό

A+

Εργαλεία

Υπολογισμός Δανείου
Συμπληρώστε το Επιτόκιο (χωρίς το σύμβολο %} και τη Διάρκεια αποπληρωμής σε έτη. Αν επιθυμείτε μπορείτε να αλλάξετε και το ποσό
(%)
Νόμισμα

Δείτε ακόμα

Βάρη-Βάρκιζα

2.500.000€

455τ.μ.


Βάρη-Βάρκιζα

2.500.000€

450τ.μ.


Βάρη-Βάρκιζα

2.500.000€

450τ.μ.


Διαδώστε το

logo (Προς Πώληση) Κατοικία Μονοκατοικία || Ανατολική Αττική/Βάρη-Βάρκιζα - 450 τ.μ, 4 Υ/Δ, 2.500.000€



Χαρακτηριστικά

Περιοχή: Βάρη-Βάρκιζα (Δ. Βάρης-Βούλας-Βουλιαγμένης)
Υποπεριοχή: Βάρκιζα
Τιμή: 2.500.000€
Εμβαδόν: 450
Κατηγορία: Κατοικίες
Τύπος: Μονοκατοικία
Κατάσταση: υπό κατασκευή
Τιμή/τ.μ.: 5.556€
Υ/Δ: 4
WC: 2
Μπάνια: 4
Όροφος: Ισόγειο
Έτος Κατασκευής: 2025
Τ.μ. Οικοπέδου:
Θέα: Καλή
Parkings 2
Θέρμανση: Αυτόνομη
Επίπεδα: 3
ΠΕΑ: A+
ID code: 1863406
Κωδικός: 15078
 

Περιγραφή

Μονοκατοικία, 450 τ.μ., Προς Πώληση , Βάρη-Βάρκιζα, Βάρκιζα, 3 Επίπεδο/α, Ισόγειο Όροφος, 4 Υ/Δ (4 Master), 4 Μπάνιο/α, 2 WC, 1 Τζάκι/α, Δάπεδα: Δρύινα, Kουφώματα: Αλουμινίου, 2 parking, Έτος κατασκευής: 2025, Κατάσταση: υπό κατασκευή, Ενεργειακό Πιστοποιητικό: Α+, Χαρακτηριστικά: Ασανσέρ, Πόρτα Ασφαλείας, Συναγερμός, Θυροτηλεόραση, Αποθήκη, Τζάκι, Νυχτερινό ρεύμα, Δορυφορική Κεραία, Καλωδιακή Τηλεόραση, Internet, Φωτοβολταϊκά Πάνελ, Εσωτερική Σκάλα, Διπλά Τζάμια, Σίτες, Βεράντες, Πολυτελές, Διαμπερές, Προσόψεως, Φωτεινό, Γωνιακό, Ενδοδαπέδια, Κλιματισμός, Ηλιακός, Πισίνα, Κήπος, Νεόδμητο, Εξαιρετικής Αρχιτεκτονικής Και minimal Aισθητικής Μονοκατοικία στην Βάρκιζα σε Γωνιακό Οικόπεδο., Πολυτελές Ακίνητο , Ευάερο και Ευήλιο. Μεγάλο Σαλόνι .Ανετοι Χώροι, Μεγάλα Μπαλκόνια., Αυτόνομη - Αντλία Θερμότητας Θέρμανση, Θέα: Καλή, Τιμή: 2.500.000€ Asty Realty, Τηλέφωνο Επικοινωνίας: 2103008807, www.asty-realty.gr, info@asty-realty.gr
 
Loading...